Appartement
Vendu
Vendu

MG – Venelle le Phare 2

1400 -
Nivelles
3 chambre(s)
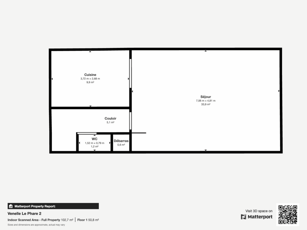
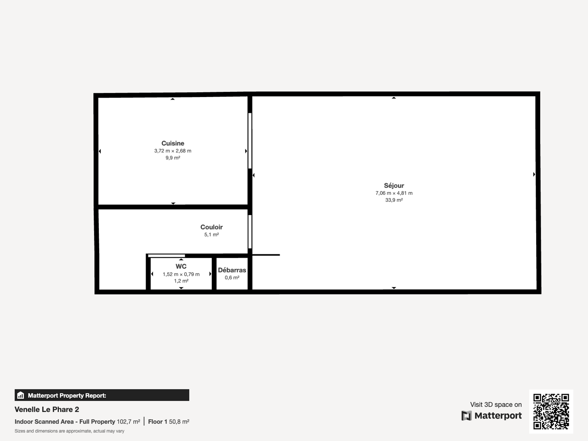
Totale habitable : 100 m²
Année de construction : 2008

Description

Cap Sud Nivelles vous propose ce magnifique appartement en rez-de-chaussée, offrant tous les avantages d’une petite maison grâce à son entrée privative. D’une superficie d’environ 100 m², ce bien spacieux et lumineux est parfait pour une famille.

Vous y découvrirez une cuisine ouverte sur un grand séjour, créant un espace convivial et moderne, parfait pour recevoir. L’appartement comprend également trois chambres, idéales pour un confort optimal. À l’extérieur, vous profiterez d’une belle terrasse et d’un jardin privatif, véritables atouts pour les amateurs de tranquillité et d’espace vert.

Situé dans un quartier calme et recherché, cet appartement duplex offre un cadre de vie agréable et privilégié.

Ne manquez pas cette opportunité unique ! Pour plus d’informations ou pour planifier une visite, n’hésitez pas à nous contacter au 067/ 79 44 44.

Général

Référence : 6332270
Catégorie : Rez-de-chaussée
3 chambre(s)
2 toilette(s)
Totale habitable : 100 m²
Superficie : 100 m²
Vous souhaitez visiter ce bien ?

Contactez notre agence

CAP SUD Nivelles
*Nous vous recontacterons dans les 24h, du lundi au vendredi

En chiffre

Superficie séjour : 34 m²
Superficie cuisine : 9 m²
Superficie sdb : 6 m²

Bâtiment

Année de construction : 2008
Etat : Bon état
Nombre d'étage : 1
Cadastre : 1499 Є

Equipement de base

1 salle de douche
Type de chauffage : gaz (chau. centr.)
Conformité électrique : oui, conforme

P.E.B

PEB N° 20141015025242
Performance : 250 kWh/m²
Performance : 29027 kWh/an
Ceci pourrait vous intéresser

Voici nos autres biens …

À louer
À louer
100 €
5024
35 m²
CAP SUD Namur
À vendre
À vendre
400 000 €
1400
2
1
476 m²
102 m²
CAP SUD Nivelles
À vendre
À vendre
150 000 €
5621
955 m²
CAP SUD Charleroi

Vous envisagez de vendre ou de louer ? 

Demandez une estimation gratuite

Rencontre nos experts et découvrez notre sélection de biens
ainsi que les garanties que nous offrons pour le sécuriser à 100%

Agence Cap Sud Wavre

Rue de Namur 159

1300 Wavre

PORTES OUVERTES

jeudi 6 février de 18h à 21h

0471 91 53 79

1 Coordonnées

hidden:source

Ne cherchez plus et recevez des biens qui correspondent à votre recherche en priorité.
keyboard_arrow_leftPrécédent
Suivantkeyboard_arrow_right

Nous utilisons des cookies pour nous permettre de mieux comprendre comment le site est utilisé. En continuant à utiliser ce site, vous acceptez cette politique.