Maison
Loué
Loué

ED – Cheval 36

6110 -
Montigny-le-Tilleul
2 chambre(s)
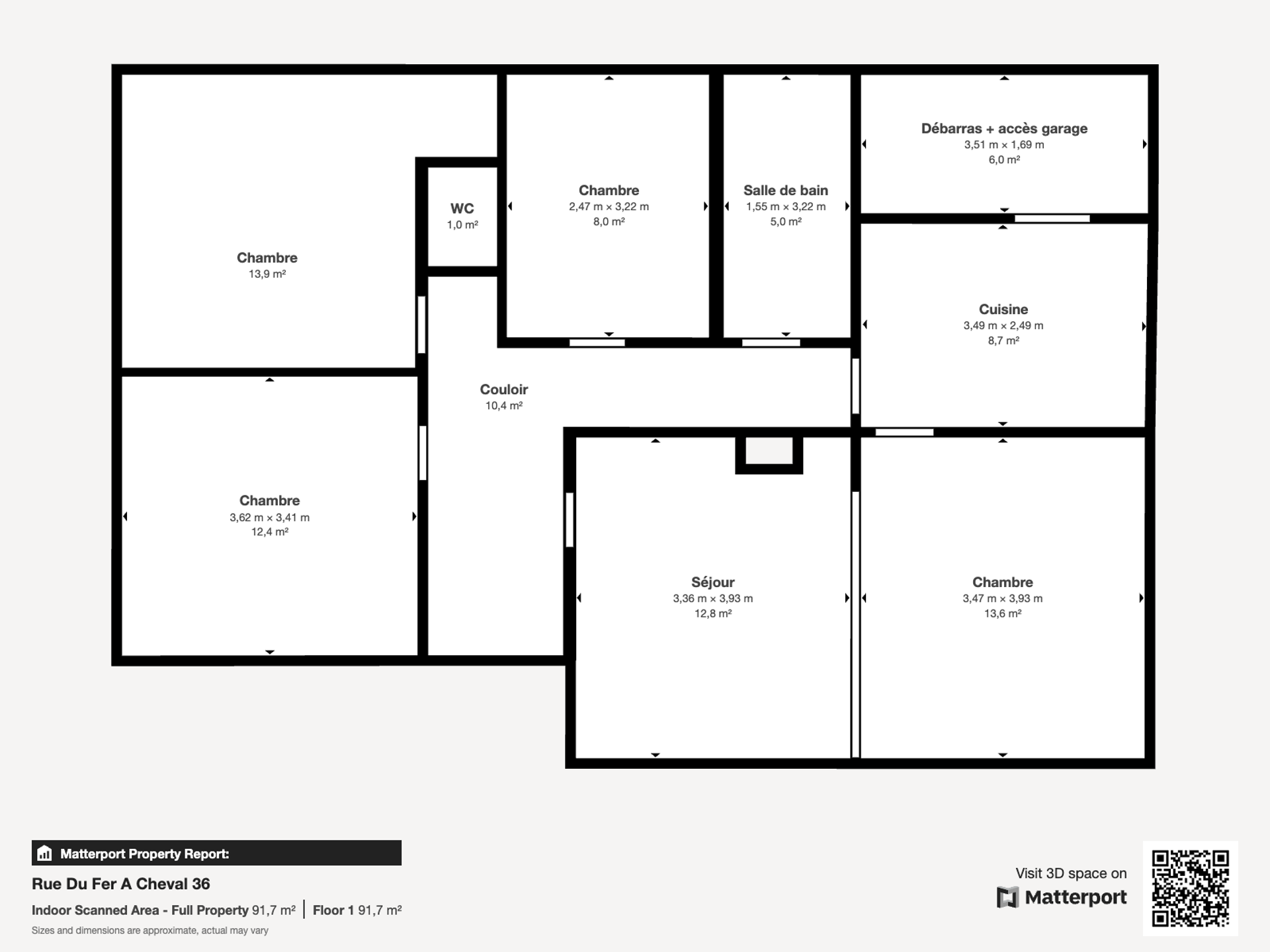
Totale habitable : 95 m²

Description

CAP SUD Nivelles vous propose à la location une maison plain-pied avec grand jardin et garage.
Située dans un quartier calme et verdoyant, cette charmante maison plain-pied de 4 façades est idéale pour ceux qui recherchent un cadre de vie paisible avec de beaux espaces extérieurs.

La maison est composée:

2 chambres lumineuses offrant confort et tranquillité
Un bureau idéal pour le télétravail ou une pièce polyvalente
Séjour spacieux et accueillant, parfait pour des moments en famille ou entre amis
Salle de bain équipée avec baignoire/douche
Cuisine aménagée avec espace de rangement
Grand garage pouvant accueillir plusieurs véhicules
Jardin généreux et ensoleillé, parfait pour les amoureux de la nature
Cave pratique pour le stockage
Grenier fonctionnel, offrant des possibilités supplémentaires de rangement

PEB D (20221029008222)
Visite de présentation: https://my.matterport.com/show/?m=SPfzSzMoaoZ
Pour organiser une visite ou pour toute question, n’hésitez pas à nous contacter au 0470/80.12.12 ou [email protected]. Nous serons ravis de vous faire découvrir cette magnifique maison.

Général

Référence : 6253577
Catégorie : Bungalow
2 chambre(s)
1 toilette(s)
1 garage(s)
Totale habitable : 95 m²
Superficie : 95 m²
Vous souhaitez visiter ce bien ?

Contactez notre agence

CAP SUD Nivelles
*Nous vous recontacterons dans les 24h, du lundi au vendredi

En chiffre

Superficie séjour : 28 m²
Superficie cuisine : 9 m²
Superficie terrasse : 23 m²

Bâtiment

Etat : Bon état
Parking(s) extérieur : 1

Equipement de base

1 cuisine(s)
Type de chauffage : mazout (chauf. centr.)
Conformité électrique : oui, conforme

P.E.B

PEB N° 20221029008222
Performance : 291 kWh/m²
Performance : 67352 kWh/an
Ceci pourrait vous intéresser

Voici nos autres biens …

À vendre
À vendre
200 000 €
6043
2418 m²
CAP SUD Charleroi
À vendre
À vendre
345 000 €
1410
2
1
95 m²
CAP SUD Braine-Waterloo
À louer
À louer
1 150 €
1140
2
1
93 m²
CAPSUD Etterbeek-Woluwé

Vous envisagez de vendre ou de louer ? 

Demandez une estimation gratuite

Rencontre nos experts et découvrez notre sélection de biens
ainsi que les garanties que nous offrons pour le sécuriser à 100%

Agence Cap Sud Wavre

Rue de Namur 159

1300 Wavre

PORTES OUVERTES

jeudi 6 février de 18h à 21h

0471 91 53 79

1 Coordonnées

hidden:source

Ne cherchez plus et recevez des biens qui correspondent à votre recherche en priorité.
keyboard_arrow_leftPrécédent
Suivantkeyboard_arrow_right

Nous utilisons des cookies pour nous permettre de mieux comprendre comment le site est utilisé. En continuant à utiliser ce site, vous acceptez cette politique.