Maison
Vendu
Vendu

Florida 5 WOO/XTEL

1410 -
Waterloo
2 chambre(s)
Superficie : 527 m²
Totale habitable : 125 m²
Année de construction : 1950

Description

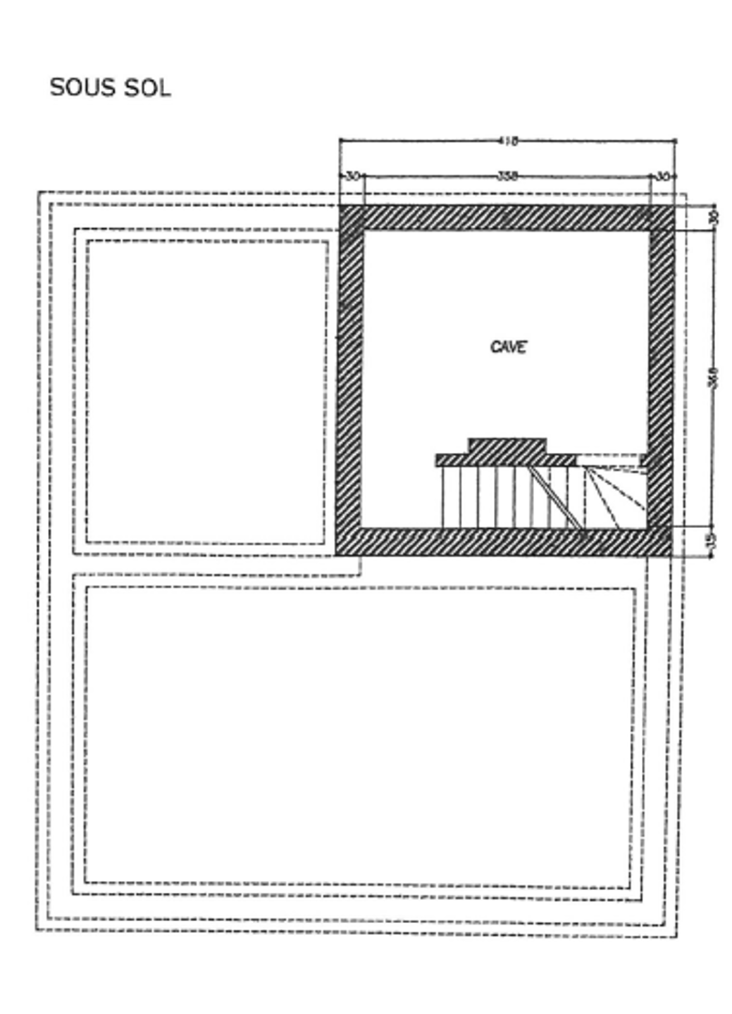
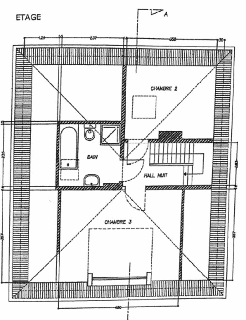
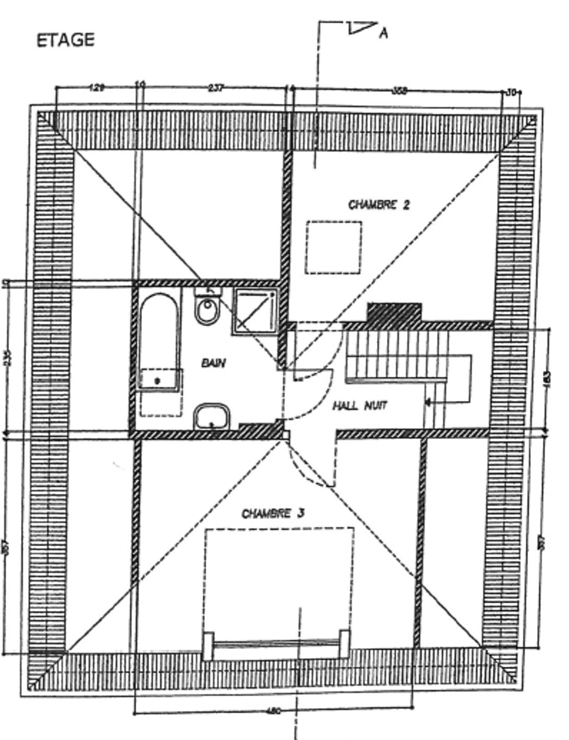
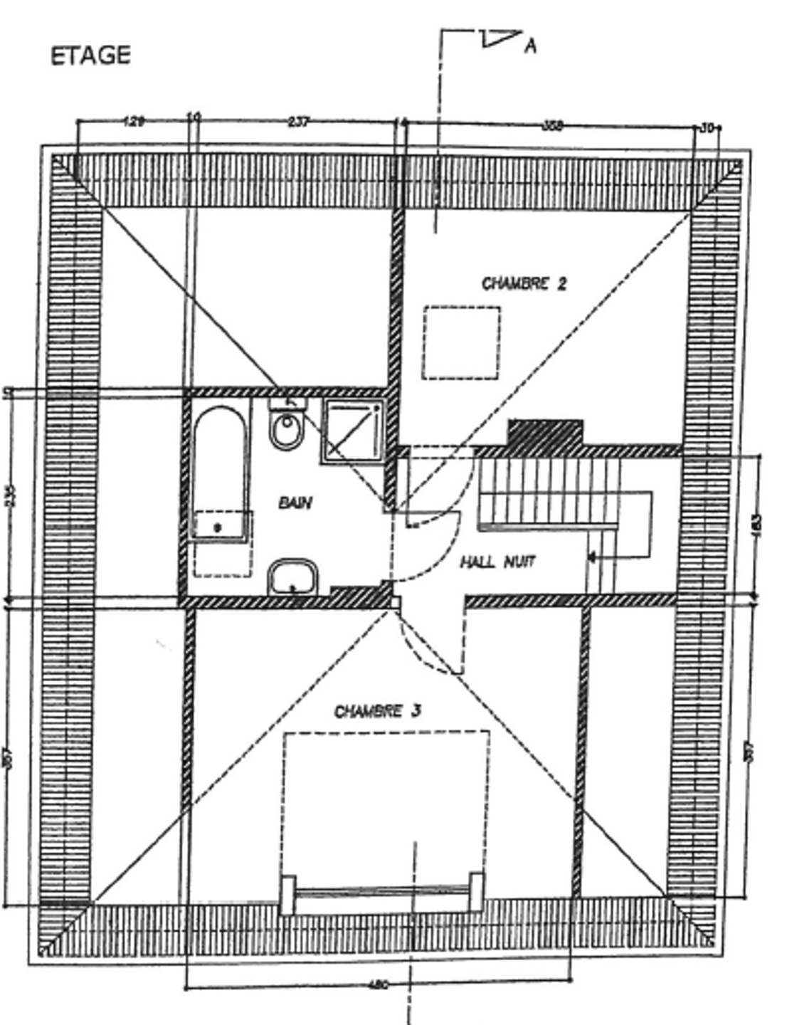
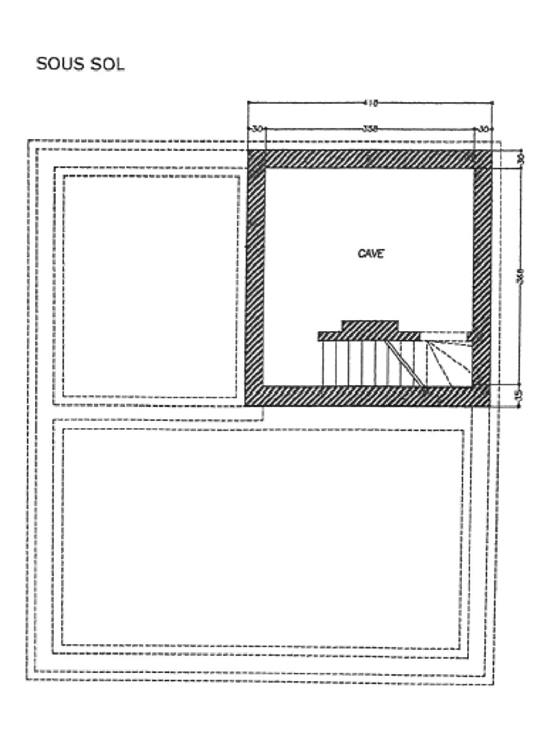
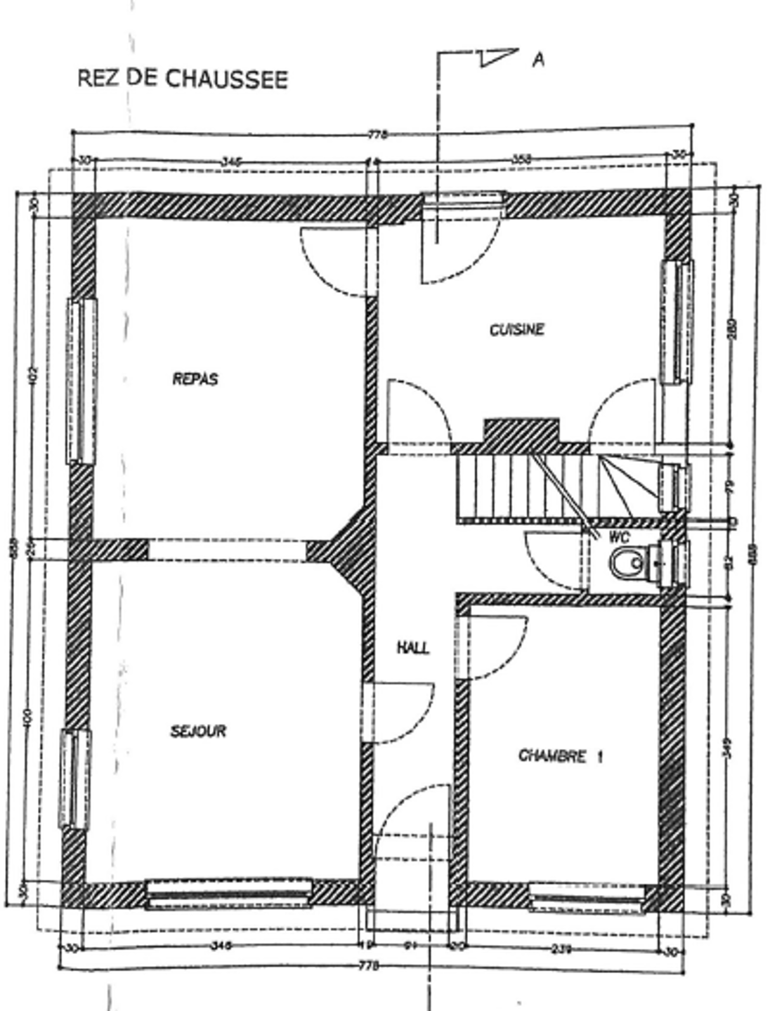
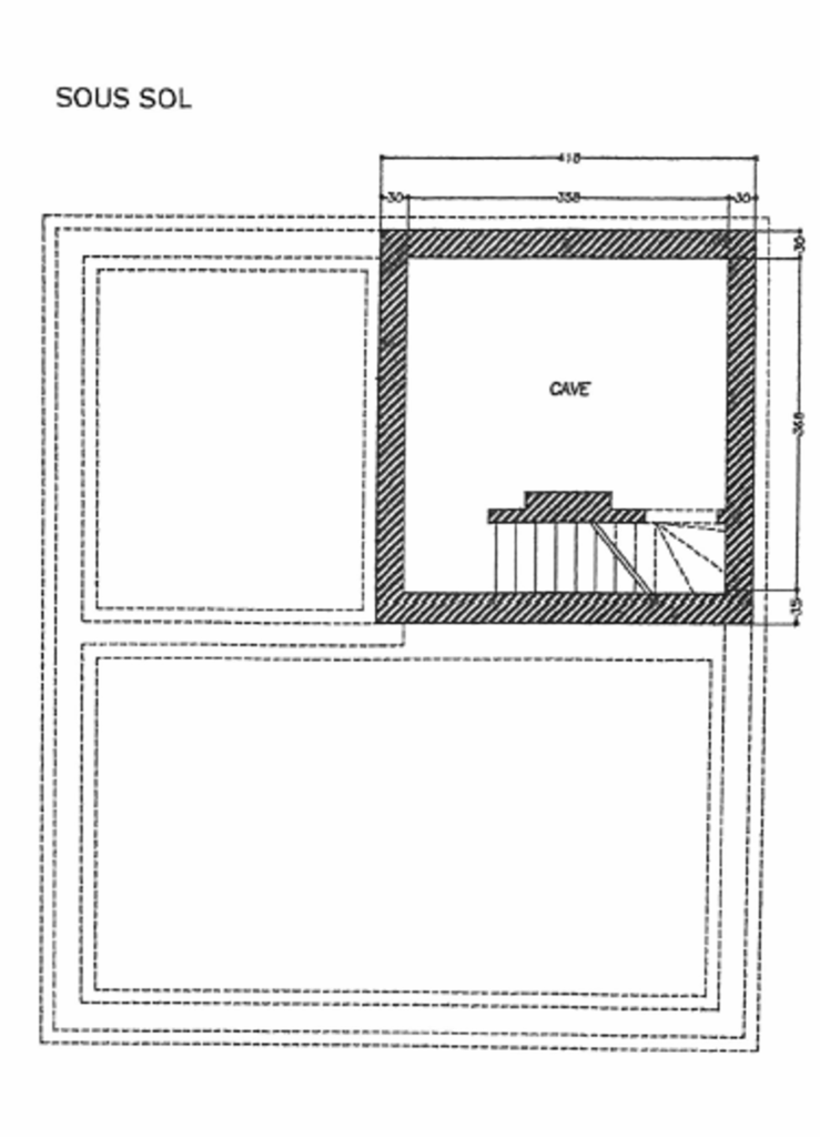
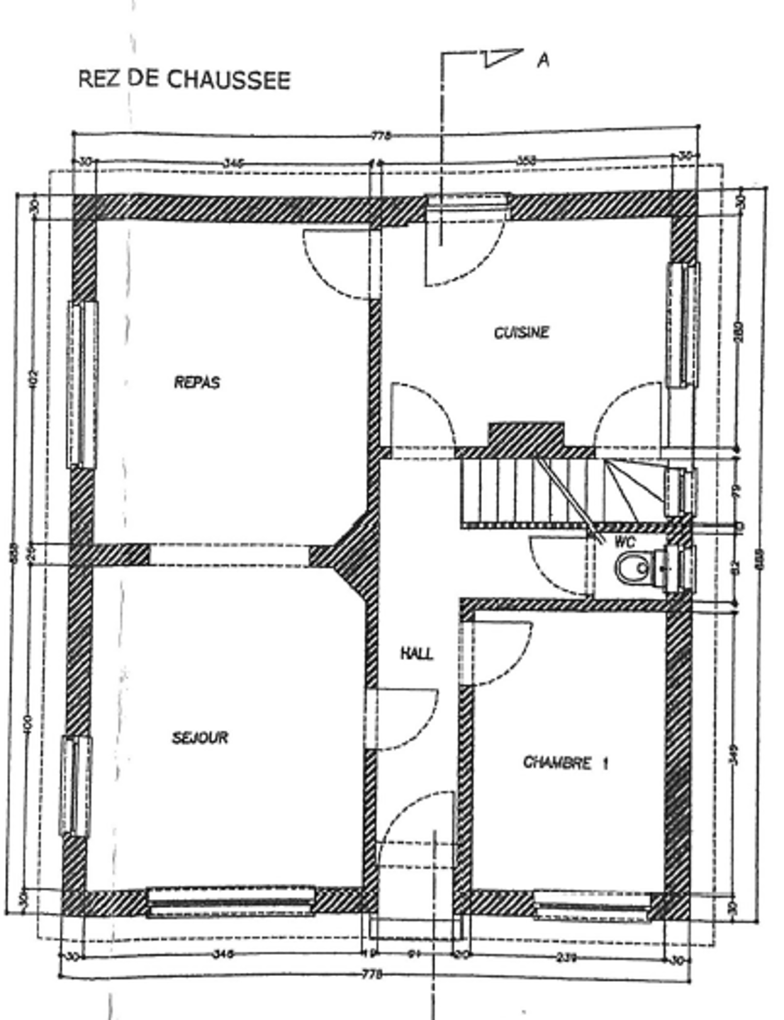
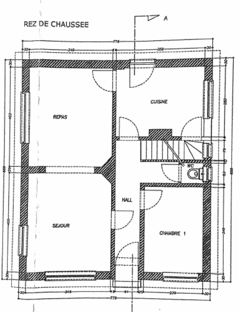
SOUS-OPTION…Merci aux propriétaires pour leur confiance… Waterloo – Quartier Faubourg, dans un quartier résidentiel convoité, à proximité des écoles, commerces et de la gare, CAP SUD vous présente cette jolie villa de +/-110m2 sise sur un terrain de 5,27a orienté Sud-Ouest. Vous trouverez au rez : un hall d’entrée avec vestiaire et local WC, un lumineux living de +/-30m2, une cuisine à rénover, un bureau ou chambre de +/-9m2. A l’étage, le hall de nuit dessert une chambre de +/-17m2 sous pentes, un bureau (ou chambre bébé) de +/-6m2 ainsi qu’une salle de bains (comprenant douche, lavabo et WC). Grenier de rangement, cave et buanderie. Terrasse de +/-30m2 donnant sur un beau jardin joliment arboré. Nombreuses possibilités de parking, possibilité d’extension de la maison au RDCH vers le jardin avec permis et garage box fermé séparé de +/-16m2. Volets électriques, chaudière gaz Vaillant 2010, châssis PVC DV 2010, isolation toiture polyuréthane…Venez vite la découvrir ! PRIX : faire offre à partir de 398.000,00 eur.

Général

Référence : 5512439
Catégorie : Villa
2 chambre(s)
2 toilette(s)
1 garage(s)
Totale habitable : 125 m²
Superficie : 527 m²
Superficie : 125 m²
Vous souhaitez visiter ce bien ?

Contactez notre agence

CAP SUD Braine-Waterloo
*Nous vous recontacterons dans les 24h, du lundi au vendredi

En chiffre

Superficie séjour : 30 m²
Superficie cuisine : 11 m²
Superficie terrasse : 25 m²

Bâtiment

Année de construction : 1950
Année de rénovation : 2010
Etat : Bon état
Parking(s) extérieur : 1
Cadastre : 1579 Є

Equipement de base

1 cuisine(s)
Type de chauffage : gaz (chau. centr.)
Conformité électrique : oui, non conforme

P.E.B

PEB N° 20190315015173
Performance : 366 kWh/m²
Performance : 37269 kWh/an
Ceci pourrait vous intéresser

Voici nos autres biens …

À louer
À louer
100 €
5024
35 m²
CAP SUD Namur
À vendre
À vendre
400 000 €
1400
2
1
476 m²
102 m²
CAP SUD Nivelles
À vendre
À vendre
150 000 €
5621
955 m²
CAP SUD Charleroi

Vous envisagez de vendre ou de louer ? 

Demandez une estimation gratuite

Rencontre nos experts et découvrez notre sélection de biens
ainsi que les garanties que nous offrons pour le sécuriser à 100%

Agence Cap Sud Wavre

Rue de Namur 159

1300 Wavre

PORTES OUVERTES

jeudi 6 février de 18h à 21h

0471 91 53 79

1 Coordonnées

hidden:source

Ne cherchez plus et recevez des biens qui correspondent à votre recherche en priorité.
keyboard_arrow_leftPrécédent
Suivantkeyboard_arrow_right

Nous utilisons des cookies pour nous permettre de mieux comprendre comment le site est utilisé. En continuant à utiliser ce site, vous acceptez cette politique.